CAÑUELAS

Casa Canadiense en Cañuelas

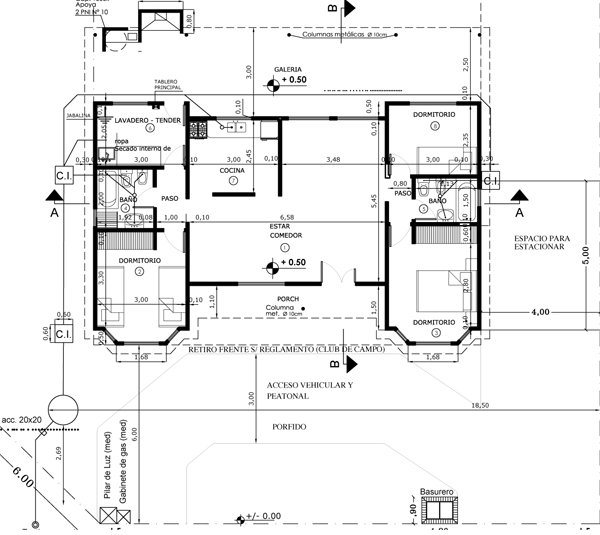
Vivienda familiar 83.62 m2 cubiertos – 41.10 m2 semicubiertos. Living–comedor, cocina americana, 3 dormitorios, 2 baños completos, lavadero, galería.

Casa Canadiense en Cañuelas

Plano casa canadiense Cañuelas

Fachada sin terminar Casa Canadiense Cañuelas

































Sombra de slider