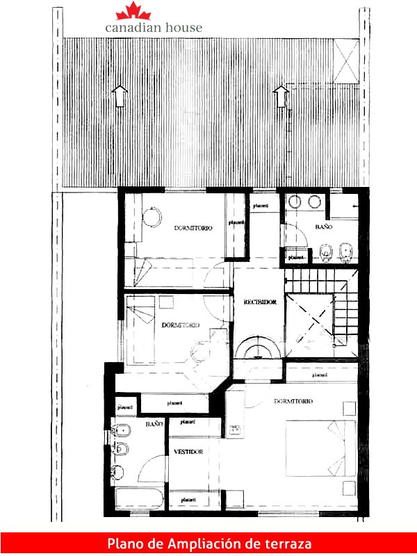
En Temperley, provincia de Buenos Aires, construimos sobre una casa de 70 m2, duplicando la superficie en una segunda planta.
El proyecto contemplaba la construcción de tres dormitorios, uno en suite, más un baño completo. La terminación exterior de la planta alta fue con siding americano cementicio contemplando que en una segunda etapa se continuara en la planta baja, conjuntamente con el reemplazo de las viejas aberturas por ventanas de características similares a las del primer piso. (Ver boceto del proyecto terminado).
La construcción en terrazas con tecnología canadiense combina una inversión razonable con la posibilidad de ampliar la superficie sin sobrecargar la estructura existente y una ejecución rápida de la obra.




